Description
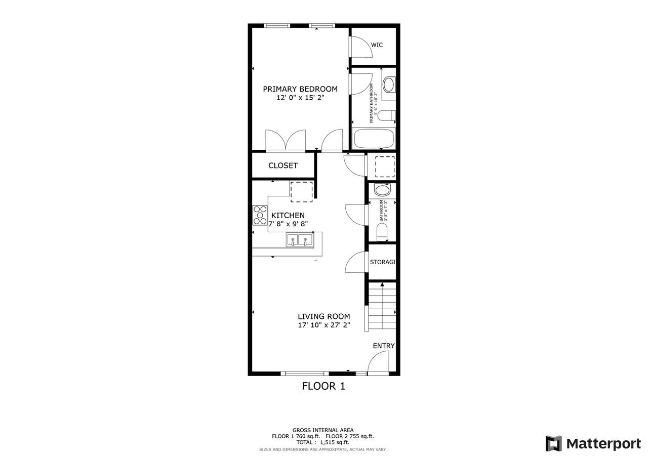
BACK ON THE MARKET no fault of the seller -Step into this tastefully upgraded home with 3 bedrooms and 2.5 baths, where modern amenities seamlessly blend with timeless charm. Featuring a split floor plan and a durable brick and Hardi Board exterior, this residence is ideally situated close to all conveniences! The bedrooms are carpeted for added warmth on cool nights, while tile flooring extends throughout the rest of the home. Every window is adorned with blinds, and each room boasts ample closet space. The downstairs master bedroom serves as a private retreat, complete with an en-suite bath. Upstairs, the bathroom offers a sleek shower/tub combo and a dual vanity. The kitchen is truly the heart of this home, showcasing a welcoming breakfast bar, gleaming granite countertops, and dual stainless-steel sinksperfect for everything from casual meals to gourmet cooking. This property stands out with its thoughtful upgrades and inviting atmosphere, making it an ideal place to call home. Plus, its prime location near shopping and restaurants makes it even more desirable.
-
3BEDS
-
N/AACRES
-
2BATHS
-
11/2 BATHS
-
1,622SQFT
-
$0$/SQFT
School Information
Description
BACK ON THE MARKET no fault of the seller -Step into this tastefully upgraded home with 3 bedrooms and 2.5 baths, where modern amenities seamlessly blend with timeless charm. Featuring a split floor plan and a durable brick and Hardi Board exterior, this residence is ideally situated close to all conveniences! The bedrooms are carpeted for added warmth on cool nights, while tile flooring extends throughout the rest of the home. Every window is adorned with blinds, and each room boasts ample closet space. The downstairs master bedroom serves as a private retreat, complete with an en-suite bath. Upstairs, the bathroom offers a sleek shower/tub combo and a dual vanity. The kitchen is truly the heart of this home, showcasing a welcoming breakfast bar, gleaming granite countertops, and dual stainless-steel sinksperfect for everything from casual meals to gourmet cooking. This property stands out with its thoughtful upgrades and inviting atmosphere, making it an ideal place to call home. Plus, its prime location near shopping and restaurants makes it even more desirable.
Related Properties
© 2025 Emerald Coast Association of Realtors MLS. All rights reserved. IDX information is provided exclusively for consumers' personal, non-commercial use and may not be used for any purpose other than to identify prospective properties consumers may be interested in purchasing. Information is deemed reliable but is not guaranteed accurate by the MLS or The Honest Group | Lokation Real Estate. Vendor Member number: 28178. Data last updated: 2025-11-16T22:00:29.997.
Vendor Member #28178.
